Your dashboard services.
Register to access all tools.

Wolnostojące maszty teleskopowe do 8 m

Wolnostojące iglice odgromowe ze składanym statywem na trzech lub czterech nogach do ochrony większych struktur na dachu i z możliwością dostosowania do nachylenia dachu do maks. 10°.

Podstawę betonową do układania jedna na drugiej (masa 17 kg / art. nr 102 010) i podkładkę (art. nr 102 050) należy zamawiać oddzielnie.

Uwaga: Przestrzegać dopuszczalnych obciążeń dachu i w razie potrzeby skonsultować się z konstruktorem budynku.

Ze statywem ze stali ocynkowanej ogniowo

3 Produkty

Nr kat. 105711 FS T D40 1.5 5.2M AL DBS RA560 STTZN

GTIN / EAN 4013364500976, Nr taryfy celnej (EU): 85389099, Waga brutto: 13.79 kg, Jednostka opakowaniowa: 1.00 szt.


Rysunki

Informacje dodatkowe

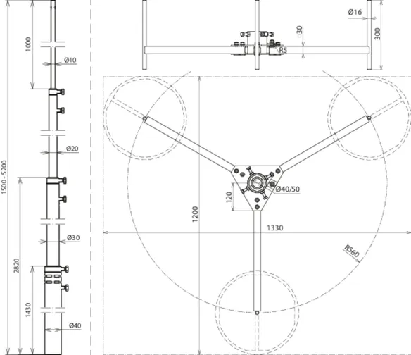
Iglica odgromowa wolnostojąca, wysokość 5200 mm
Teleskopowa wolnostojąca iglica odgromowa
ze składanym statywem na trzech nogach
do ochrony większych struktur na dachu,
z możliwością dostosowania do nachylenia dachu do maks. 10°
Iglice odgromowe są zwymiarowane zgodnie z Eurokodem 1
(DIN EN 1991-1-4 + DIN EN 1991-1-4/NA).
dla maksymalnego obciążenia wiatrem
od 149 km/godz. do 183 km/godz.
w zależności od długości wyciągniętej iglicy odgromowej i liczby podstaw betonowych
do ustawiania na podstawie betonowej (waga 17 kg)
Podstawy betonowe do układania jedna na drugiej (art. nr 102 010)
Podkładki (nr art. 102 050),
należy zamawiać oddzielnie
Height: 5200 mm
Radius: 560 mm
Space required for stand: 1210 x 1340 mm
Stand material: HDG steel (St/tZn)
Air-termination mast material: Al

Producent: DEHN
Typ: FS T D40 1.5 5.2M AL DBS RA560 STTZN
Nr kat.: 105711
lub podobny.

Certyfikaty

 

Dane techniczne

Height 5200 mm
Air-termination tip (Ø length) 10-1000 mm
Termination mast (Ø length) 40/30/20-4200 mm
Radius 560 mm
Space required for stand 1210 x 1340 mm
Stand material HDG steel (St/tZn)
Air-termination mast material Al
Standard DIN EN 62561-(1+2)

Produkt 105711 został dodany do notatnika.

Do koszyka dodano produkt 105711.

Nr kat. 105713 FS T D50 1.6 6.5M AL DBS RA1435 STTZN

GTIN / EAN 4013364501041, Nr taryfy celnej (EU): 85389099, Waga brutto: 26.32 kg, Jednostka opakowaniowa: 1.00 szt.


Rysunki

Informacje dodatkowe

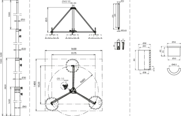
Iglica odgromowa wolnostojąca, wysokość 6500 mm
Teleskopowe wolnostojące iglice odgromowe
z podporą usztywniającą i składanym statywem na trzech nogach
do ochrony większych struktur na dachu,
z możliwością dostosowania do nachylenia dachu do maks. 10°
Iglice odgromowe są zwymiarowane zgodnie z Eurokodem 1
(DIN EN 1991-1-4 + DIN EN 1991-1-4/NA).
dla maksymalnego obciążenia wiatrem
od 149 km/godz. do 189 km/godz.
w zależności od długości wyciągniętej iglicy odgromowej i liczby podstaw betonowych
do ustawiania na podstawie betonowej (waga 17 kg)
Podstawy betonowe do układania jedna na drugiej (art. nr 102 010)
Podkładki (nr art. 102 050),
należy zamawiać oddzielnie
Height: 6500 mm
Radius: 1435 mm
Space required for stand: 2850 x 2530 mm
Stand material: HDG steel (St/tZn)
Air-termination mast material: Al

Producent: DEHN
Typ: FS T D50 1.6 6.5M AL DBS RA1435 STTZN
Nr kat.: 105713
lub podobny.

Certyfikaty

 

Dane techniczne

Height 6500 mm
Air-termination tip (Ø length) 10-1000 mm
Termination mast (Ø length) 50/40/30/20-5500 mm
Radius 1435 mm
Space required for stand 2850 x 2530 mm
Stand material HDG steel (St/tZn)
Air-termination mast material Al
Standard DIN EN 62561-(1+2)

Produkt 105713 został dodany do notatnika.

Do koszyka dodano produkt 105713.

Nr kat. 105716 FS T D50 1.8 8.0M AL DBS RA1435 STTZN

GTIN / EAN 4013364501072, Nr taryfy celnej (EU): 85389099, Waga brutto: 29.28 kg, Jednostka opakowaniowa: 1.00 szt.


Rysunki

Informacje dodatkowe

Iglica odgromowa wolnostojąca, wysokość 8000 mm
Teleskopowe wolnostojące iglice odgromowe
z podporą usztywniającą i składanym statywem na trzech nogach
do ochrony większych struktur na dachu,
z możliwością dostosowania do nachylenia dachu do maks. 10°
Iglice odgromowe są zwymiarowane zgodnie z Eurokodem 1
(DIN EN 1991-1-4 + DIN EN 1991-1-4/NA).
dla maksymalnego obciążenia wiatrem
od 147 km/godz. do 149 km/godz.
w zależności od długości wyciągniętej iglicy odgromowej i liczby podstaw betonowych
do ustawiania na podstawie betonowej (waga 17 kg)
Podstawy betonowe do układania jedna na drugiej (art. nr 102 010)
Podkładki (nr art. 102 050),
należy zamawiać oddzielnie
Height: 8000 mm
Radius: 1435 mm
Space required for stand: 2850 x 2530 mm
Stand material: HDG steel (St/tZn)
Air-termination mast material: Al

Producent: DEHN
Typ: FS T D50 1.8 8.0M AL DBS RA1435 STTZN
Nr kat.: 105716
lub podobny.

Certyfikaty

 

Dane techniczne

Height 8000 mm
Air-termination tip (Ø length) 10-1000 mm
Termination mast (Ø length) 50/60/50/40/30/20-7000 mm
Radius 1435 mm
Space required for stand 2850 x 2530 mm
Stand material HDG steel (St/tZn)
Air-termination mast material Al
Standard DIN EN 62561-(1+2)

Produkt 105716 został dodany do notatnika.

Do koszyka dodano produkt 105716.


Ze statywem ze stali nierdzewnej

4 Produkty

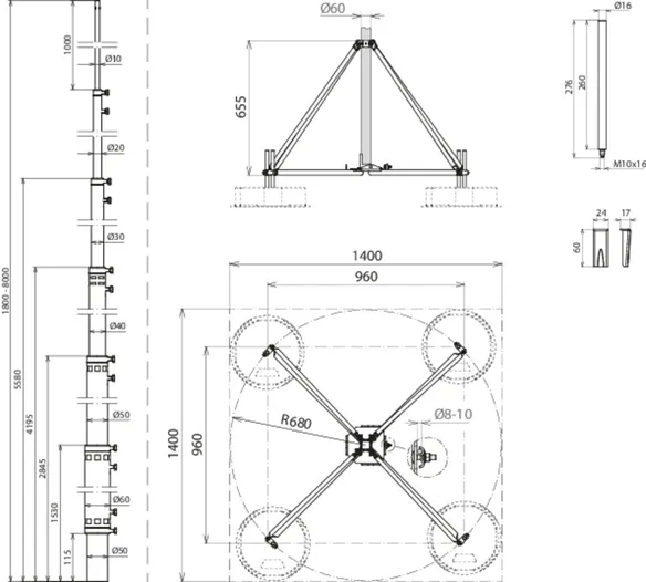
Nr kat. 105710 FS T D40 1.5 5.2M AL DBS RA680 V2A

GTIN / EAN 4013364500969, Nr taryfy celnej (EU): 85389099, Waga brutto: 12.58 kg, Jednostka opakowaniowa: 1.00 szt.


Rysunki

Informacje dodatkowe

Iglica odgromowa wolnostojąca, wysokość 5200 mm
Teleskopowe wolnostojące iglice odgromowe
ze statywem na trzech nogach małym ze stali nierdzewnej (wykonanie składane)
do ochrony większych struktur na dachu,
z zestawem adapterów do zmiany średnicy z D50 na D40 mm
Z możliwością kompensacji nachylenia dachu do maks. 10°
Iglice odgromowe są zwymiarowane zgodnie z Eurokodem 1
(DIN EN 1991-1-4 + DIN EN 1991-1-4/NA).
dla maksymalnego obciążenia wiatrem
od 149 km/godz. do 191 km/godz.
w zależności od długości wyciągniętej iglicy odgromowej i liczby podstaw betonowych
do ustawiania na podstawie betonowej (waga 17 kg)
Zestawy wsporników do podstaw (art. nr 107 396),
Podstawy betonowe do układania jedna na drugiej (art. nr 102 010)
Podkładki (nr art. 102 050),
należy zamawiać oddzielnie
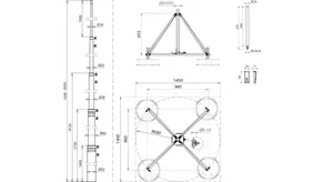
Height: 5200 mm
Radius: 680 mm
Space required for stand: 1400 x 1600 mm
Stand material: StSt
Air-termination mast material: Al

Producent: DEHN
Typ: FS T D40 1.5 5.2M AL DBS RA680 V2A
Nr kat.: 105710
lub podobny.

 

Dane techniczne

Height 5200 mm
Air-termination tip (Ø length) 10-1000 mm
Termination mast (Ø length) 40/30/20-4200 mm
Radius 680 mm
Space required for stand 1400 x 1600 mm
Stand material StSt
Air-termination mast material Al
Standard DIN EN 62561-(1+2)

Produkt 105710 został dodany do notatnika.

Do koszyka dodano produkt 105710.

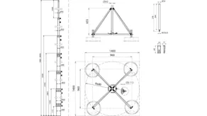
Nr kat. 105712 FS T D50 1.6 6.5M AL VBS RA680 V2A

GTIN / EAN 4013364500983, Nr taryfy celnej (EU): 85389099, Waga brutto: 16.77 kg, Jednostka opakowaniowa: 1.00 szt.


Rysunki

Informacje dodatkowe

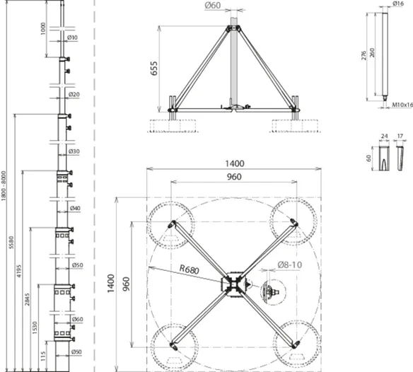
Iglica odgromowa wolnostojąca, wysokość 6500 mm
Teleskopowe wolnostojące iglice odgromowe
ze statywem na czterech nogach małym ze stali nierdzewnej (wykonanie składane)
do ochrony większych struktur na dachu,
Z możliwością kompensacji nachylenia dachu do maks. 10°
Iglice odgromowe są zwymiarowane zgodnie z Eurokodem 1
(DIN EN 1991-1-4 + DIN EN 1991-1-4/NA).
dla maksymalnego obciążenia wiatrem
od 149 km/godz. do 189 km/godz.
w zależności od długości wyciągniętej iglicy odgromowej i liczby podstaw betonowych
do ustawiania na podstawie betonowej (waga 17 kg)
Zestawy wsporników do podstaw (art. nr 107 396),
Podstawy betonowe do układania jedna na drugiej (art. nr 102 010)
Podkładki (nr art. 102 050),
należy zamawiać oddzielnie
Height: 6500 mm
Radius: 680 mm
Space required for stand: 1400 x 1400 mm
Stand material: StSt
Air-termination mast material: Al

Producent: DEHN
Typ: FS T D50 1.6 6.5M AL VBS RA680 V2A
Nr kat.: 105712
lub podobny.

 

Dane techniczne

Height 6500 mm
Air-termination tip (Ø length) 10-1000 mm
Termination mast (Ø length) 50/40/30/20-5500 mm
Radius 680 mm
Space required for stand 1400 x 1400 mm
Stand material StSt
Air-termination mast material Al
Standard DIN EN 62561-(1+2)

Produkt 105712 został dodany do notatnika.

Do koszyka dodano produkt 105712.

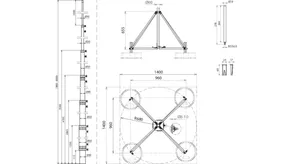
Nr kat. 105714 FS T D50 1.8 8.0M AL VBS RA680 V2A

GTIN / EAN 4013364501058, Nr taryfy celnej (EU): 85389099, Waga brutto: 19.95 kg, Jednostka opakowaniowa: 1.00 szt.


Rysunki

Informacje dodatkowe

Iglica odgromowa wolnostojąca, wysokość 8000 mm
Teleskopowe wolnostojące iglice odgromowe
ze statywem na czterech nogach małym ze stali nierdzewnej (wykonanie składane)
do ochrony większych struktur na dachu,
Z możliwością kompensacji nachylenia dachu do maks. 10°
Iglice odgromowe są zwymiarowane zgodnie z Eurokodem 1
(DIN EN 1991-1-4 + DIN EN 1991-1-4/NA).
dla maksymalnego obciążenia wiatrem
od 140 km/godz. do 150 km/godz.
w zależności od długości wyciągniętej iglicy odgromowej i liczby podstaw betonowych
do ustawiania na podstawie betonowej (waga 17 kg)
Zestawy wsporników do podstaw (art. nr 107 396),
Podstawy betonowe do układania jedna na drugiej (art. nr 102 010)
Podkładki (nr art. 102 050),
należy zamawiać oddzielnie
Height: 8000 mm
Radius: 680 mm
Space required for stand: 1400 x 1400 mm
Stand material: StSt
Air-termination mast material: Al

Producent: DEHN
Typ: FS T D50 1.8 8.0M AL VBS RA680 V2A
Nr kat.: 105714
lub podobny.

 

Dane techniczne

Height 8000 mm
Air-termination tip (Ø length) 10-1000 mm
Termination mast (Ø length) 50/60/50/40/30/20-7000 mm
Radius 680 mm
Space required for stand 1400 x 1400 mm
Stand material StSt
Air-termination mast material Al
Standard DIN EN 62561-(1+2)

Produkt 105714 został dodany do notatnika.

Do koszyka dodano produkt 105714.

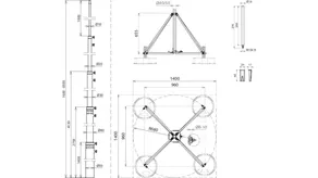
Nr kat. 105715 FS T D50 1.8 8.0M AL VBS RA1330 V2A

GTIN / EAN 4013364501065, Nr taryfy celnej (EU): 85389099, Waga brutto: 30.45 kg, Jednostka opakowaniowa: 1.00 szt.


Rysunki

Informacje dodatkowe

Iglica odgromowa wolnostojąca, wysokość 8000 mm
Teleskopowe wolnostojące iglice odgromowe
ze statywem na czterech nogach dużym ze stali nierdzewnej (wykonanie składane)
do ochrony większych struktur na dachu,
Z możliwością kompensacji nachylenia dachu do maks. 10°
Iglice odgromowe są zwymiarowane zgodnie z Eurokodem 1
(DIN EN 1991-1-4 + DIN EN 1991-1-4/NA).
dla maksymalnego obciążenia wiatrem
od 155 km/godz. do 170 km/godz.
w zależności od długości wyciągniętej iglicy odgromowej i liczby podstaw betonowych
do ustawiania na podstawie betonowej (waga 17 kg)
Zestawy wsporników do podstaw (art. nr 107 396),
Podstawy betonowe do układania jedna na drugiej (art. nr 102 010)
Podkładki (nr art. 102 050),
należy zamawiać oddzielnie
Height: 8000 mm
Radius: 1330 mm
Space required for stand: 2300 x 2300 mm
Stand material: StSt
Air-termination mast material: Al

Producent: DEHN
Typ: FS T D50 1.8 8.0M AL VBS RA1330 V2A
Nr kat.: 105715
lub podobny.

 

Dane techniczne

Height 8000 mm
Air-termination tip (Ø length) 10-1000 mm
Termination mast (Ø length) 50/60/50/40/30/20-7000 mm
Radius 1330 mm
Space required for stand 2300 x 2300 mm
Stand material StSt
Air-termination mast material Al
Standard DIN EN 62561-(1+2)

Produkt 105715 został dodany do notatnika.

Do koszyka dodano produkt 105715.


Powrót na górę