Your dashboard services.
Register to access all tools.

Maszt odgromowy z przewodem HVI light plus

Kompletny zestaw masztu odgromowego do ekstremalnych wysokości (m. in. do biogazowni).
Montaż należy wykonać za pomocą trzech regulowanych elementów mocujących (art. nr 105 345).

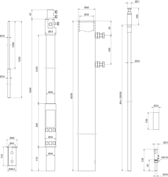
Modułowy maszt odgromowy / zestaw składa się z następujących elementów:
– Iglica odgromowa, aluminium, Ø16/10 mm, długość 1500 mm
– Rura wsporcza GRP/aluminium Ø40/50 mm, długość 1600 mm
– Adapter ze stali HDG, Ø50/40 mm
– Rura masztowa, stal HDG, Ø60 mm, długość 6000 mm (maks. długość transportowa)
– Przewód HVI light plus (wstępnie zmontowany, montaż wewnątrz rury)

1 Produkt

Nr kat. 819735 FM 60 L9M IP HVI LI PL GFK AL STTZN

GTIN / EAN 4013364499539, Nr taryfy celnej (EU): 85389099, Waga brutto: 52.77 kg, Jednostka opakowaniowa: 1.00 szt.


Rysunki

Informacje dodatkowe

Maszty odgromowe z przewodem HVI light plus
Maszty odgromowe z przewodem HVI light plus
przewód odprowadzający o izolacji wysokonapięciowej
pozwalający zachować odstęp separujący
od elementów przewodzących prąd
zgodnie z normą DIN EN 62305-3 (VDE 0185-305-3)
Zaprojektowane specjalnie do stosowania np. na komorach fermentacyjnych lub
zbiornikach na gaz w biogazowniach
zgodnie z II klasą ochrony odgromowej urządzenia piorunochronnego.
Maszty odgromowe są zwymiarowane zgodnie
z Eurokodem 1 (DIN EN 1991-1-4 + DIN EN 1991-1-4/NA).
Urządzenie piorunochronne składa się z następujących elementów:
– Iglica odgromowa, aluminium, Ø16/10 mm, długość 1500 mm
– Rura wsporcza GRP/aluminium Ø40/50 mm
– Adapter ze stali HDG, Ø50/40 mm
– Rura masztowa, stal HDG, Ø60 mm
dodatkowo
3 regulowane elementy mocujące (art. nr 105 345)
Wykonanie z 1x przewodem HVI light plus poprowadzonym wewnątrz,
Jeśli potrzebny jest dłuższy przewód HVI light plus, należy zamówić dodatkową ilość
osobno.
Całkowita długość masztu odgromowego: 8800 mm
Długość zwodu pionowego: 1500 mm
Długość rury wsporczej: 1600 mm
Długość rury masztowej: 6000 mm
Kolor przewodu: szary ●
Minimalna długość do zamówienia: 10 m
Spełnia wymagania normy: DIN IEC/TS 62561-8 (VDE V 0185-561-8)

Producent: DEHN
Typ: FM 60 L9M IP HVI LI PL GFK AL STTZN
Nr kat.: 819735
lub podobny.

Certyfikaty

 

Dane techniczne

Całkowita długość masztu odgromowego 8800 mm
Długość zwodu pionowego 1500 mm
Długość rury wsporczej 1600 mm
Długość rury masztowej 6000 mm
Średnica przewodu Ø 21 mm
Kolor przewodu szary
Materiał przewodu miedź
Minimalna długość do zamówienia 10 m
Spełnia wymagania normy DIN IEC/TS 62561-8 (VDE V 0185-561-8)

Produkt 819735 został dodany do notatnika.

Do koszyka dodano produkt 819735.


Powrót na górę