Your dashboard services.
Register to access all tools.

Rura wsporcza z przewodem HVI light plus

Przewód odprowadzający o izolacji wysokonapięciowej pozwalający zachować odstęp separujący od elementów przewodzących prąd zgodnie z DIN EN 62305-3 (VDE 0185-305-3). Możliwość stosowania do ekwiwalentnego odstępu separującego s ≤ 60 cm (w powietrzu) albo s ≤ 120 cm (materiał stały).
Szlachetna rura wsporcza ze wstępnie zmontowanym, wewnętrznym przewodem HVI light Plus o niewielkiej powierzchni wystawionej na działanie wiatru.
Możliwość elastycznego doboru długości od 6 m do 70 m.
Artykuł jest produkowany na zamówienie (konfekcjonowanie długości przewodu), dlatego w tym przypadku nie przysługuje prawo zwrotu.

Przewód HVI light plus wewnątrz rury wsporczej z iglicą odgromową

Rura wsporcza z wewnętrzną końcówką / wyrównawczym elementem sprężynowym i iglica odgromowa ze stali nierdzewnej Ø10 mm, długość 500 / 1000 mm.

4 Produkty

Nr kat. 819672 HVI LI PL L6M SR1600 FSP500 GFK AL V2A

GTIN / EAN 4013364494527, Nr taryfy celnej (EU): 85389099, Waga brutto: 8.10 kg, Jednostka opakowaniowa: 1.00 szt.


Rysunki

Informacje dodatkowe

Przewód HVI light plus w rurze wsporczej z iglicą odgromową, kolor szary
Przewód HVI light plus w rurze wsporczej
przewód odprowadzający o izolacji wysokonapięciowej
pozwalający zachować odstęp separujący
od elementów przewodzących prąd
zgodnie z normą DIN EN 62305-3 (VDE 0185-305-3)
Ekwiwalentny odstęp separujący s =< 60 cm (w powietrzu)
albo s < 120 cm (materiał stały).
Rury wsporcze z przewodem HVI light plus są zwymiarowane zgodnie
z Eurokodem 1 (DIN EN 1991-1-4 + DIN EN 1991-1-4/NA).
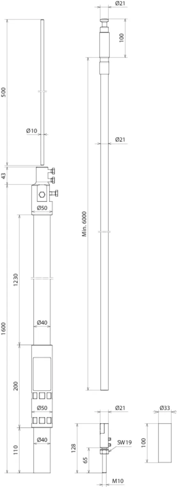
Przewód HVI light plus ułożony w rurze wsporczej, ze specjalną
końcówką przyłączeniową wewnątrz i iglicą odgromową Ø10 mm, długość 500 mm
Materiał rury wsporczej: TWS / Al
Długość rury wsporczej: 1600 mm
Długość transportowa: 1600 mm
Średnica przewodu Ø: 21 mm
Kolor przewodu: szary ●
Materiał przewodu: miedź
Minimalna długość do zamówienia: 6 m
Spełnia wymagania normy: DIN IEC/TS 62561-8 (VDE V 0185-561-8)

Producent: DEHN
Typ: HVI LI PL L6M SR1600 FSP500 GFK AL V2A
Nr kat.: 819672
lub podobny.

Certyfikaty

 

Dane techniczne

Materiał iglicy odgromowej stal nierdzewna
Długość iglicy odgromowej 500 mm
Materiał rury wsporczej TWS / Al
Długość rury wsporczej 1600 mm
Długość transportowa 1600 mm
Średnica zewnętrzna Ø 40 mm
Średnica przewodu Ø 21 mm
Kolor przewodu szary
Materiał przewodu miedź
Minimalna długość do zamówienia 6 m
Spełnia wymagania normy DIN IEC/TS 62561-8 (VDE V 0185-561-8)

Produkt 819672 został dodany do notatnika.

Do koszyka dodano produkt 819672.

Nr kat. 819673 HVI LI PL L6M SR1600 FSP1000 GFK AL V2A

GTIN / EAN 4013364494534, Nr taryfy celnej (EU): 85389099, Waga brutto: 8.37 kg, Jednostka opakowaniowa: 1.00 szt.


Rysunki

Informacje dodatkowe

Przewód HVI light plus w rurze wsporczej z iglicą odgromową, kolor szary
Przewód HVI light plus w rurze wsporczej
przewód odprowadzający o izolacji wysokonapięciowej
pozwalający zachować odstęp separujący
od elementów przewodzących prąd
zgodnie z normą DIN EN 62305-3 (VDE 0185-305-3)
Ekwiwalentny odstęp separujący s =< 60 cm (w powietrzu)
albo s < 120 cm (materiał stały).
Rury wsporcze z przewodem HVI light plus są zwymiarowane zgodnie
z Eurokodem 1 (DIN EN 1991-1-4 + DIN EN 1991-1-4/NA).
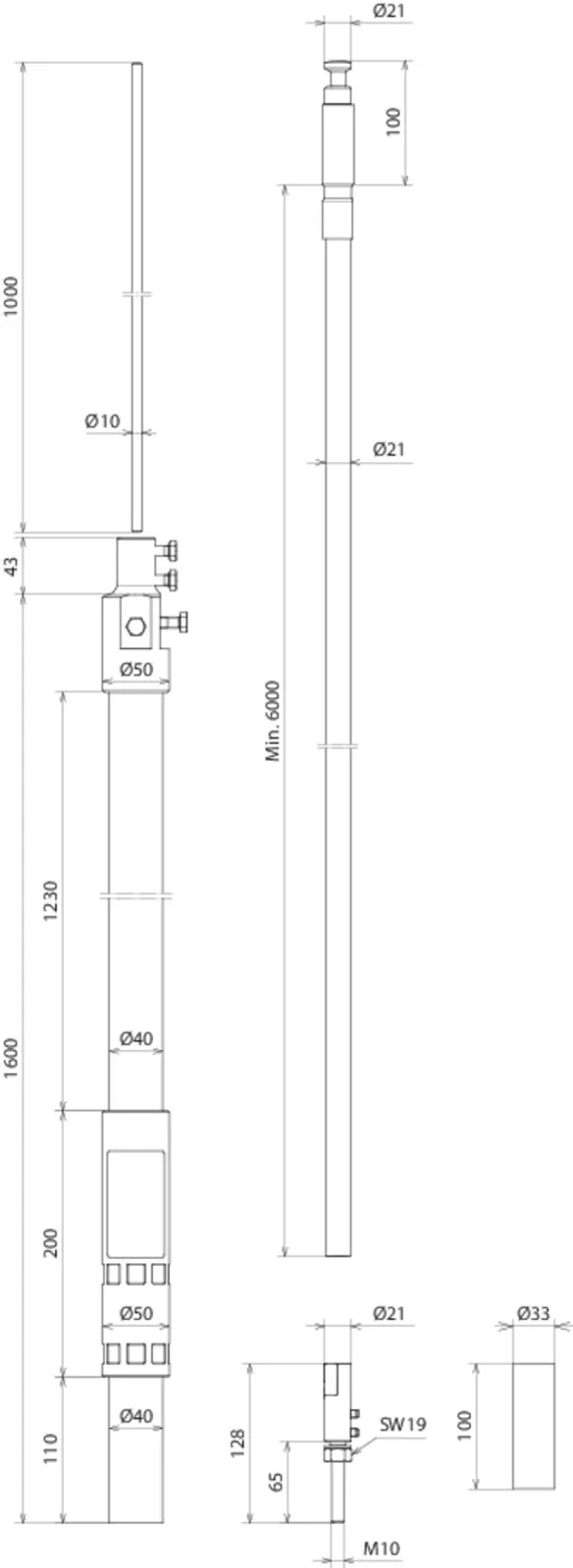
Przewód HVI light plus ułożony w rurze wsporczej, ze specjalną
końcówką przyłączeniową wewnątrz i iglicą odgromową Ø10 mm, długość 1000 mm
Materiał rury wsporczej: TWS / Al
Długość rury wsporczej: 1600 mm
Długość transportowa: 1600 mm
Średnica przewodu Ø: 21 mm
Kolor przewodu: szary ●
Materiał przewodu: miedź
Minimalna długość do zamówienia: 6 m
Spełnia wymagania normy: DIN IEC/TS 62561-8 (VDE V 0185-561-8)

Producent: DEHN
Typ: HVI LI PL L6M SR1600 FSP1000 GFK AL V2A
Nr kat.: 819673
lub podobny.

Certyfikaty

 

Dane techniczne

Materiał iglicy odgromowej stal nierdzewna
Długość iglicy odgromowej 1000 mm
Materiał rury wsporczej TWS / Al
Długość rury wsporczej 1600 mm
Długość transportowa 1600 mm
Średnica zewnętrzna Ø 40 mm
Średnica przewodu Ø 21 mm
Kolor przewodu szary
Materiał przewodu miedź
Minimalna długość do zamówienia 6 m
Spełnia wymagania normy DIN IEC/TS 62561-8 (VDE V 0185-561-8)

Produkt 819673 został dodany do notatnika.

Do koszyka dodano produkt 819673.

Nr kat. 819674 HVI LI PL L6M SR2400 FSP500 GFK AL V2A

GTIN / EAN 4013364494541, Nr taryfy celnej (EU): 85389099, Waga brutto: 9.10 kg, Jednostka opakowaniowa: 1.00 szt.


Rysunki

Informacje dodatkowe

Przewód HVI light plus w rurze wsporczej z iglicą odgromową, kolor szary
Przewód HVI light plus w rurze wsporczej
przewód odprowadzający o izolacji wysokonapięciowej
pozwalający zachować odstęp separujący
od elementów przewodzących prąd
zgodnie z normą DIN EN 62305-3 (VDE 0185-305-3)
Ekwiwalentny odstęp separujący s =< 60 cm (w powietrzu)
albo s < 120 cm (materiał stały).
Rury wsporcze z przewodem HVI light plus są zwymiarowane zgodnie
z Eurokodem 1 (DIN EN 1991-1-4 + DIN EN 1991-1-4/NA).
Przewód HVI light plus ułożony w rurze wsporczej, ze specjalną
końcówką przyłączeniową wewnątrz i iglicą odgromową Ø10 mm, długość 500 mm
Materiał rury wsporczej: TWS / Al
Długość rury wsporczej: 2400 mm
Długość transportowa: 2400 mm
Średnica przewodu Ø: 21 mm
Kolor przewodu: szary ●
Materiał przewodu: miedź
Minimalna długość do zamówienia: 6 m
Spełnia wymagania normy: DIN IEC/TS 62561-8 (VDE V 0185-561-8)

Producent: DEHN
Typ: HVI LI PL L6M SR2400 FSP500 GFK AL V2A
Nr kat.: 819674
lub podobny.

Certyfikaty

 

Dane techniczne

Materiał iglicy odgromowej stal nierdzewna
Długość iglicy odgromowej 500 mm
Materiał rury wsporczej TWS / Al
Długość rury wsporczej 2400 mm
Długość transportowa 2400 mm
Średnica zewnętrzna Ø 40 mm
Średnica przewodu Ø 21 mm
Kolor przewodu szary
Materiał przewodu miedź
Minimalna długość do zamówienia 6 m
Spełnia wymagania normy DIN IEC/TS 62561-8 (VDE V 0185-561-8)

Produkt 819674 został dodany do notatnika.

Do koszyka dodano produkt 819674.

Nr kat. 819675 HVI LI PL L6M SR2400 FSP1000 GFK AL V2A

GTIN / EAN 4013364494558, Nr taryfy celnej (EU): 85389099, Waga brutto: 9.37 kg, Jednostka opakowaniowa: 1.00 szt.


Rysunki

Informacje dodatkowe

Przewód HVI light plus w rurze wsporczej z iglicą odgromową, kolor szary
Przewód HVI light plus w rurze wsporczej
przewód odprowadzający o izolacji wysokonapięciowej
pozwalający zachować odstęp separujący
od elementów przewodzących prąd
zgodnie z normą DIN EN 62305-3 (VDE 0185-305-3)
Ekwiwalentny odstęp separujący s =< 60 cm (w powietrzu)
albo s < 120 cm (materiał stały).
Rury wsporcze z przewodem HVI light plus są zwymiarowane zgodnie
z Eurokodem 1 (DIN EN 1991-1-4 + DIN EN 1991-1-4/NA).
Przewód HVI light plus ułożony w rurze wsporczej, ze specjalną
końcówką przyłączeniową wewnątrz i iglicą odgromową Ø10 mm, długość 1000 mm
Materiał rury wsporczej: GRP / Al
Długość rury wsporczej: 2400 mm
Długość transportowa: 2400 mm
Średnica przewodu Ø: 21 mm
Kolor przewodu: szary ●
Materiał przewodu: miedź
Minimalna długość do zamówienia: 6 m
Spełnia wymagania normy: DIN IEC/TS 62561-8 (VDE V 0185-561-8)

Producent: DEHN
Typ: HVI LI PL L6M SR2400 FSP1000 GFK AL V2A
Nr kat.: 819675
lub podobny.

Certyfikaty

 

Dane techniczne

Materiał iglicy odgromowej stal nierdzewna
Długość iglicy odgromowej 1000 mm
Materiał rury wsporczej GRP / Al
Długość rury wsporczej 2400 mm
Długość transportowa 2400 mm
Średnica zewnętrzna Ø 40 mm
Średnica przewodu Ø 21 mm
Kolor przewodu szary
Materiał przewodu miedź
Minimalna długość do zamówienia 6 m
Spełnia wymagania normy DIN IEC/TS 62561-8 (VDE V 0185-561-8)

Produkt 819675 został dodany do notatnika.

Do koszyka dodano produkt 819675.


Powrót na górę