Your dashboard services.
Register to access all tools.

Statyw do rur wsporczych bez wyprowadzenia bocznego

Statywy do rur wsporczych HVI z przewodem HVI poprowadzonym wewnątrz/na zewnątrz rury wsporczej, z podwójną płytką dociskową na 2x drut okrągły 8-10 mm. Z możliwością kompensacji nachylenia dachu do maks. 10° za pomocą regulowanego mocowania na uchwycie podstawy.

Podstawy betonowe do układania jedna na drugiej, podkładki i zestawy wsporników do podstaw do mocowania dodatkowych podstaw betonowych są dostępne osobno jako akcesoria.

Uwaga: Informacje na temat kompatybilności materiałowej wsporników dachowych i podkładek w stosunku do elementów dachowych można uzyskać kontaktując się z DEHN.

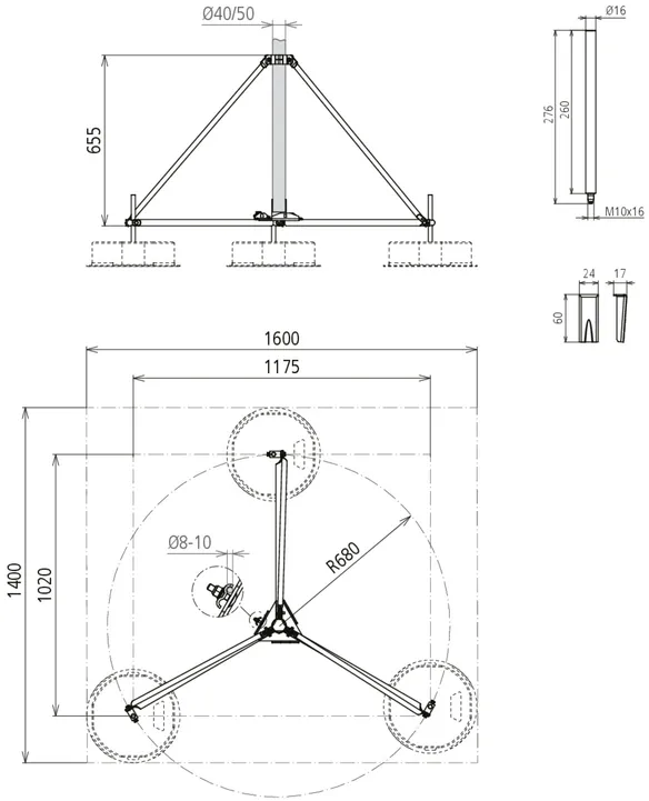
Mały statyw

Suitable for the HVI Conductor installed inside of the supporting tube.

1 Produkt

Nr kat. 107390 DBS KB D50 RA680 V2A

GTIN / EAN 4013364478466, Nr taryfy celnej (EU): 85389099, Waga brutto: 7.75 kg, Jednostka opakowaniowa: 1.00 szt.

Wcześniejszy produkt

Rysunki

Informacje dodatkowe

Statyw na trzech nogach mały ze stali nierdzewnej (wykonanie składane)
Statyw na trzech nogach (wykonanie składane) do rur wsporczych
Ø50 mm z wyprowadzeniem bocznym lub iglic odgromowych
Ø40 mm z akcesoriami redukcyjnymi
Z podwójną płytką dociskową na 2x drut okrągły 8-10 mm
Do ustawiania na podstawie betonowej (waga 17 kg)
Z możliwością kompensacji nachylenia dachu do maks. 10°
Podstawy betonowe do układania jedna na drugiej (art. nr 102 010),
podkładki (art. nr 102 050),
zestawy wsporników do podstaw (art. nr 107 396),
akcesoria redukcyjne (art. nr 107 399),
należy zamawiać oddzielnie.
Statywy na trzech nogach są zwymiarowane zgodnie z
Eurokodem 1 (DIN EN 1991-1-4 + DIN EN 1991-1-4/NA)
.
Materiał statywu: stal nierdzewna
Uchwyt do rury: 50 i 40*) mm
Promień (statyw): 680 mm
Wymagana powierzchnia dla statywu: 1175 x 1020 mm

Producent: DEHN
Typ: DBS KB D50 RA680 V2A
Nr kat.: 107390
lub podobny.

Certyfikaty

 

Dane techniczne

Materiał statywu stal nierdzewna
Uchwyt do rury 50 i 40*) mm
Promień (statyw) 680 mm
Wymagana powierzchnia dla statywu 1175 x 1020 mm
*) Tylko z zestawem adapterów art. nr 107 399.

Produkt 107390 został dodany do notatnika.

Do koszyka dodano produkt 107390.


Duży statyw

Suitable for the HVI Conductor installed outside of the supporting tube.

1 Produkt

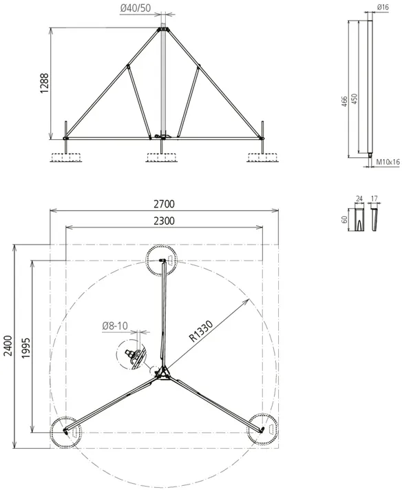
Nr kat. 107391 DBS KB D50 RA1330 V2A

GTIN / EAN 4013364478473, Nr taryfy celnej (EU): 85389099, Waga brutto: 15.60 kg, Jednostka opakowaniowa: 1.00 szt.

Wcześniejszy produkt

Rysunki

Informacje dodatkowe

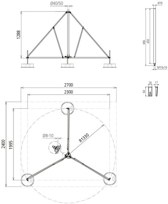
Statyw na trzech nogach duży ze stali nierdzewnej (wykonanie składane)
Statyw na trzech nogach (wykonanie składane) do rur wsporczych
Ø50 mm z wyprowadzeniem bocznym i podwójną płytką dociskową na
2x drut okrągły 8-10 mm, do ustawiania na
podstawie betonowej (waga 17 kg) z możliwością kompensacji
nachylenia dachu do maks. 10° za pomocą zestawu wsporników do podstaw.
Podstawy betonowe do układania jedna na drugiej (art. nr 102 010),
podkładki (art. nr 102 050),
zestawy wsporników do podstaw (art. nr 107 396),
akcesoria redukcyjne (art. nr 107 399),
należy zamawiać oddzielnie.
Statywy na trzech nogach są zwymiarowane zgodnie z
Eurokodem 1 (DIN EN 1991-1-4 + DIN EN 1991-1-4/NA)
.
Materiał statywu: stal nierdzewna
Uchwyt do rury: 50 i 40*) mm
Promień (statyw): 1330 mm
Wymagana powierzchnia dla statywu: 2300 x 1995 mm

Producent: DEHN
Typ: DBS KB D50 RA1330 V2A
Nr kat.: 107391
lub podobny.

 

Dane techniczne

Materiał statywu stal nierdzewna
Uchwyt do rury 50 i 40*) mm
Promień (statyw) 1330 mm
Wymagana powierzchnia dla statywu 2300 x 1995 mm
*) Tylko z zestawem adapterów art. nr 107 399.

Produkt 107391 został dodany do notatnika.

Do koszyka dodano produkt 107391.


Mały statyw na czterech nogach

1 Produkt

Nr kat. 107490 VBS KB D50 RA680 V2A

GTIN / EAN 4013364478480, Nr taryfy celnej (EU): 85389099, Waga brutto: 10.38 kg, Jednostka opakowaniowa: 1.00 szt.


Rysunki

Informacje dodatkowe

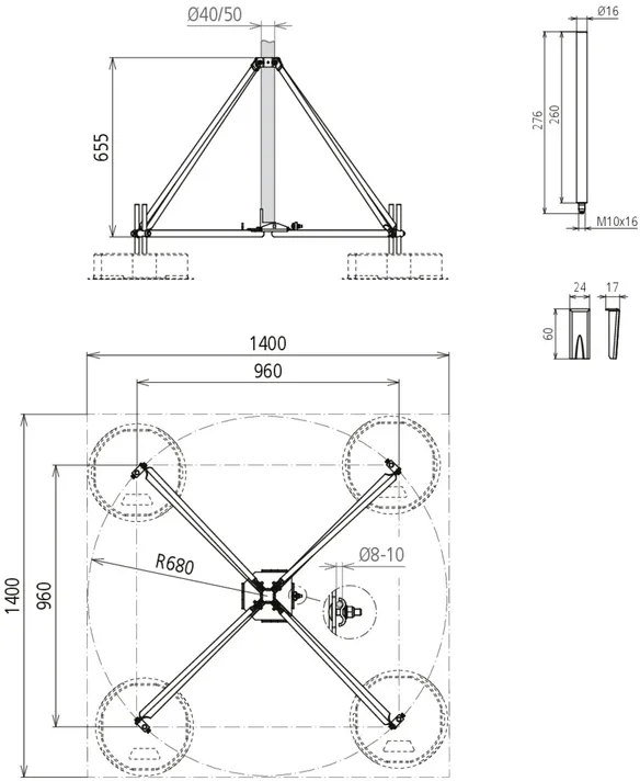
Statyw na czterech nogach mały ze stali nierdzewnej (wykonanie składane)
Statyw na czterech nogach (wykonanie składane) do rur wsporczych
Ø50 mm z wyprowadzeniem bocznym lub iglic odgromowych
Ø40 mm z akcesoriami redukcyjnymi
Z podwójną płytką dociskową na 2x drut okrągły 8-10 mm
Do ustawiania na podstawie betonowej (waga 17 kg)
Z możliwością kompensacji nachylenia dachu do maks. 10°
Podstawy betonowe do układania jedna na drugiej (art. nr 102 010),
podkładki (art. nr 102 050),
zestawy wsporników do podstaw (art. nr 107 396),
akcesoria redukcyjne (art. nr 107 399),
należy zamawiać oddzielnie.
Statywy na czterech nogach są zwymiarowane zgodnie z
Eurokodem 1 (DIN EN 1991-1-4 + DIN EN 1991-1-4/NA)
.
Materiał statywu: stal nierdzewna
Uchwyt do rury: 50 i 40*) mm
Promień (statyw): 680 mm
Wymagana powierzchnia dla statywu: 960 x 960 mm

Producent: DEHN
Typ: VBS KB D50 RA680 V2A
Nr kat.: 107490
lub podobny.

Certyfikaty

 

Dane techniczne

Materiał statywu stal nierdzewna
Uchwyt do rury 50 i 40*) mm
Promień (statyw) 680 mm
Wymagana powierzchnia dla statywu 960 x 960 mm
*) Tylko z zestawem adapterów art. nr 107 399.

Produkt 107490 został dodany do notatnika.

Do koszyka dodano produkt 107490.


Duży statyw na czterech nogach

1 Produkt

Nr kat. 107491 VBS KB D50 RA1330 V2A

GTIN / EAN 4013364478497, Nr taryfy celnej (EU): 85389099, Waga brutto: 17.63 kg, Jednostka opakowaniowa: 1.00 szt.


Rysunki

Informacje dodatkowe

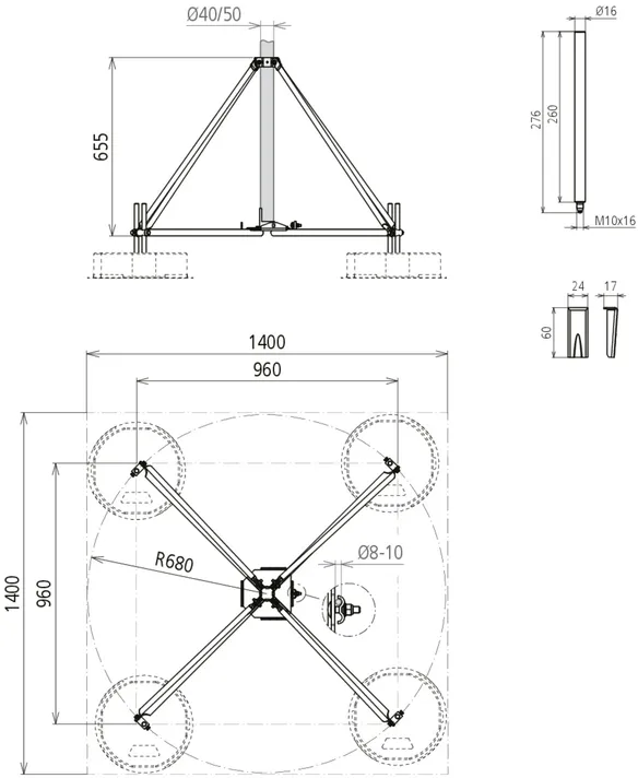
Statyw na czterech nogach duży ze stali nierdzewnej (wykonanie składane)
Statyw na czterech nogach (wykonanie składane) do rur wsporczych
Ø50 mm z wyprowadzeniem bocznym lub iglic odgromowych
Ø40 mm z akcesoriami redukcyjnymi
Z podwójną płytką dociskową na 2x drut okrągły 8-10 mm
Do ustawiania na podstawie betonowej (waga 17 kg)
Z możliwością kompensacji nachylenia dachu do maks. 10°
Podstawy betonowe do układania jedna na drugiej (art. nr 102 010),
podkładki (art. nr 102 050),
zestawy wsporników do podstaw (art. nr 107 396),
akcesoria redukcyjne (art. nr 107 399),
należy zamawiać oddzielnie.
Statywy na czterech nogach są zwymiarowane zgodnie z
Eurokodem 1 (DIN EN 1991-1-4 + DIN EN 1991-1-4/NA)
.
Materiał statywu: stal nierdzewna
Uchwyt do rury: 50 i 40*) mm
Promień (statyw): 1330 mm
Wymagana powierzchnia dla statywu: 1880 x 1880 mm

Producent: DEHN
Typ: VBS KB D50 RA1330 V2A
Nr kat.: 107491
lub podobny.

 

Dane techniczne

Materiał statywu stal nierdzewna
Uchwyt do rury 50 i 40*) mm
Promień (statyw) 1330 mm
Wymagana powierzchnia dla statywu 1880 x 1880 mm
*) Tylko z zestawem adapterów art. nr 107 399.

Produkt 107491 został dodany do notatnika.

Do koszyka dodano produkt 107491.


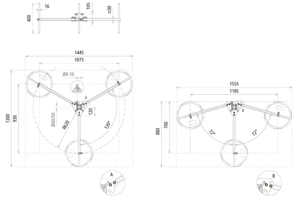
Statyw na trzech nogach mały stal HDG

Nadaje się do prowadzenia przewodu HVI wewnątrz.

2 Produkty

Nr kat. 105351 DBS KB D40.50 RA620 STTZN

GTIN / EAN 4013364238916, Nr taryfy celnej (EU): 85389099, Waga brutto: 11.50 kg, Jednostka opakowaniowa: 1.00 szt.


Rysunki

Informacje dodatkowe

Statyw na trzech nogach do przewodu HVI, mały, stal HDG
Statyw na trzech nogach do przewodu HVI w rurze wsporczej
specjalne wykonanie do rur wsporczych (długość 3200 mm).
Aby zachować promień gięcia przewodu HVI na dole
statywu na trzech nogach, 2 betonowe podstawy
są umieszczone poniżej nogi, a jedna powyżej.
Bez dodatkowego mocowania do elementów konstrukcyjnych
Możliwość kompensacji nachylenia dachu do maks. 10°.
Podstawę betonową do układania jedna na drugiej (art. nr 102 010) i
podkładkę (art. nr 102 050) należy zamawiać oddzielnie.
Statywy na trzech nogach są zwymiarowane zgodnie z
Eurokodem 1 (DIN EN 1991-1-4 + DIN EN 1991-1-4/NA) .
Materiał statywu: St/tZn
Uchwyt do rury: 40 / 50 mm
Promień (statyw): 620 mm
Liczba podstaw betonowych: 3-12 sztuk po 17 kg
Wymagana powierzchnia dla statywu: 1300 x 1450 mm

Producent: DEHN
Typ: DBS KB D40.50 RA620 STTZN
Nr kat.: 105351
lub podobny.

Certyfikaty

 

Dane techniczne

Materiał statywu St/tZn
Uchwyt do rury 40 / 50 mm
Promień (statyw) 620 mm
Liczba podstaw betonowych 3-12 sztuk po 17 kg
Wymagana powierzchnia dla statywu 1300 x 1450 mm

Produkt 105351 został dodany do notatnika.

Do koszyka dodano produkt 105351.

Nr kat. 105357 DBS KB D40.50 RA220 STTZN

GTIN / EAN 4013364527829, Nr taryfy celnej (EU): 85389099, Waga brutto: 8.04 kg, Jednostka opakowaniowa: 1.00 szt.


Rysunki

Informacje dodatkowe

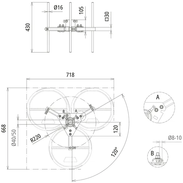
Statyw na trzech nogach ergonomiczny, o regulowanej wysokości i składany,
do wyposażenia w iglice odgromowe i rury wsporcze
Ø 40 mm i Ø50 mm
Możliwość kompensacji skosów dachowych do 10°
Możliwość mocowania maksymalnie czterech
podstaw betonowych na nogę.
Materiał statywu: St/tZn
Uchwyt do rury: 40 / 50 mm
Promień (statyw): 220 mm
Liczba podstaw betonowych: 3-12 sztuk po 17 kg
Wymagana powierzchnia dla statywu: 668 x 718 mm

Producent: DEHN
Typ: DBS KB D40.50 RA220 STTZN
Nr kat.: 105357
lub podobny.

 

Dane techniczne

Materiał statywu St/tZn
Uchwyt do rury 40 / 50 mm
Promień (statyw) 220 mm
Liczba podstaw betonowych 3-12 sztuk po 17 kg
Wymagana powierzchnia dla statywu 668 x 718 mm

Produkt 105357 został dodany do notatnika.

Do koszyka dodano produkt 105357.


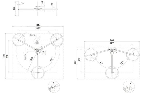
Statyw na trzech nogach duży stal HDG

Nadaje się do prowadzenia przewodu HVI na zewnątrz.

1 Produkt

Nr kat. 105201 DBS KB D40.50 RA1435 STTZN

GTIN / EAN 4013364095915, Nr taryfy celnej (EU): 85389099, Waga brutto: 17.23 kg, Jednostka opakowaniowa: 1.00 szt.


Rysunki

Informacje dodatkowe

Statyw na trzech nogach do przewodu HVI stal HDG
Statyw na trzech nogach do przewodu HVI w rurze wsporczej
specjalne wykonanie do rur wsporczych (długość 4700 mm).
Aby zachować promień gięcia przewodu HVI na dole
statywu na trzech nogach, 2 betonowe podstawy
są umieszczone poniżej nogi, a jedna powyżej.
Bez dodatkowego mocowania do elementów konstrukcyjnych
Możliwość kompensacji nachylenia dachu do maks. 10°.
Podstawę betonową do układania jedna na drugiej (art. nr 102 010) i
podkładkę (art. nr 102 050) należy zamawiać oddzielnie.
Statywy na trzech nogach są zwymiarowane zgodnie z
z Eurokodem 1 (DIN EN 1991-1-4 + DIN EN 1991-1-4/NA).
Materiał statywu: St/tZn
Uchwyt do rury: 40 / 50 mm
Promień (statyw): 1435 mm
Liczba podstaw betonowych: 3-12 sztuk po 17 kg
Wymagana powierzchnia dla statywu: 2520 x 2860 mm

Producent: DEHN
Typ: DBS KB D40.50 RA1435 STTZN
Nr kat.: 105201
lub podobny.

Certyfikaty

 

Dane techniczne

Materiał statywu St/tZn
Uchwyt do rury 40 / 50 mm
Promień (statyw) 1435 mm
Liczba podstaw betonowych 3-12 sztuk po 17 kg
Wymagana powierzchnia dla statywu 2520 x 2860 mm

Produkt 105201 został dodany do notatnika.

Do koszyka dodano produkt 105201.


Powrót na górę