Your dashboard services.
Register to access all tools.

Statyw do rur wsporczych z wyprowadzeniem bocznym

Statywy do rur wsporczych HVI z przewodem HVI poprowadzonym wewnątrz/na zewnątrz rury wsporczej, z podwójną płytką dociskową na 2x drut okrągły 8-10 mm. Z możliwością kompensacji nachylenia dachu do maks. 10° za pomocą regulowanego mocowania na uchwycie podstawy.

Podstawy betonowe do układania jedna na drugiej, podkładki i zestawy wsporników do podstaw do mocowania dodatkowych podstaw betonowych są dostępne osobno jako akcesoria.

Uwaga: Informacje na temat kompatybilności materiałowej wsporników dachowych i podkładek w stosunku do elementów dachowych można uzyskać kontaktując się z DEHN.

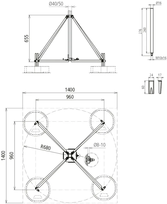
Mały statyw

Na iglice odgromowe D40, rury wsporcze DEHNiso-Combi z iglicą odgromową lub przewodem HVI poprowadzonym wewnątrz rury wsporczej / na rurze wsporczej.

1 Produkt

Nr kat. 107390 DBS KB D50 RA680 V2A

GTIN / EAN 4013364478466, Nr taryfy celnej (EU): 85389099, Waga brutto: 7.75 kg, Jednostka opakowaniowa: 1.00 szt.

Wcześniejszy produkt

Rysunki

Informacje dodatkowe

Statyw na trzech nogach mały ze stali nierdzewnej (wykonanie składane)
Statyw na trzech nogach (wykonanie składane) do rur wsporczych
Ø50 mm z wyprowadzeniem bocznym lub iglic odgromowych
Ø40 mm z akcesoriami redukcyjnymi
Z podwójną płytką dociskową na 2x drut okrągły 8-10 mm
Do ustawiania na podstawie betonowej (waga 17 kg)
Z możliwością kompensacji nachylenia dachu do maks. 10°
Podstawy betonowe do układania jedna na drugiej (art. nr 102 010),
podkładki (art. nr 102 050),
zestawy wsporników do podstaw (art. nr 107 396),
akcesoria redukcyjne (art. nr 107 399),
należy zamawiać oddzielnie.
Statywy na trzech nogach są zwymiarowane zgodnie z
Eurokodem 1 (DIN EN 1991-1-4 + DIN EN 1991-1-4/NA)
.
Materiał statywu: stal nierdzewna
Uchwyt do rury: 50 i 40*) mm
Promień (statyw): 680 mm

Producent: DEHN
Typ: DBS KB D50 RA680 V2A
Nr kat.: 107390
lub podobny.

Certyfikaty

 

Dane techniczne

Materiał statywu stal nierdzewna
Uchwyt do rury 50 i 40*) mm
Promień (statyw) 680 mm
Wymagana powierzchnia dla statywu 1175 x 1020 mm
*) Tylko z zestawem adapterów art. nr 107 399.

Produkt 107390 został dodany do notatnika.

Do koszyka dodano produkt 107390.


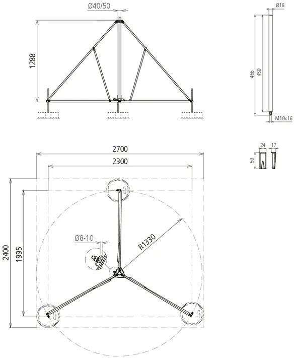
Duży statyw

Na iglice odgromowe D40, rury wsporcze DEHNiso-Combi z iglicą odgromową lub przewodem HVI poprowadzonym wewnątrz rury wsporczej / na rurze wsporczej.

1 Produkt

Nr kat. 107391 DBS KB D50 RA1330 V2A

GTIN / EAN 4013364478473, Nr taryfy celnej (EU): 85389099, Waga brutto: 15.60 kg, Jednostka opakowaniowa: 1.00 szt.

Wcześniejszy produkt

Rysunki

Informacje dodatkowe

Statyw na trzech nogach duży ze stali nierdzewnej (wykonanie składane)
Statyw na trzech nogach (wykonanie składane) do rur wsporczych
Ø50 mm z wyprowadzeniem bocznym i podwójną płytką dociskową na
2x drut okrągły 8-10 mm, do ustawiania na
podstawie betonowej (waga 17 kg) z możliwością kompensacji
nachylenia dachu do maks. 10° za pomocą zestawu wsporników do podstaw.
Podstawy betonowe do układania jedna na drugiej (art. nr 102 010),
podkładki (art. nr 102 050),
zestawy wsporników do podstaw (art. nr 107 396),
akcesoria redukcyjne (art. nr 107 399),
należy zamawiać oddzielnie.
Statywy na trzech nogach są zwymiarowane zgodnie z
Eurokodem 1 (DIN EN 1991-1-4 + DIN EN 1991-1-4/NA)
.
Materiał statywu: stal nierdzewna
Uchwyt do rury: 50 i 40*) mm
Promień (statyw): 1330 mm

Producent: DEHN
Typ: DBS KB D50 RA1330 V2A
Nr kat.: 107391
lub podobny.

Certyfikaty

 

Dane techniczne

Materiał statywu stal nierdzewna
Uchwyt do rury 50 i 40*) mm
Promień (statyw) 1330 mm
Wymagana powierzchnia dla statywu 2300 x 1995 mm
*) Tylko z zestawem adapterów art. nr 107 399.

Produkt 107391 został dodany do notatnika.

Do koszyka dodano produkt 107391.


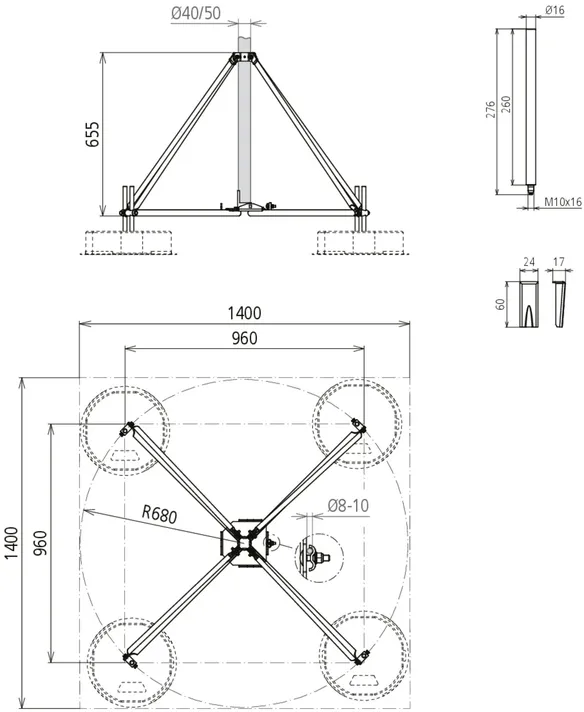
Mały statyw na czterech nogach

Na iglice odgromowe D40, rury wsporcze DEHNiso-Combi z iglicą odgromową lub przewodem HVI poprowadzonym wewnątrz rury wsporczej / na rurze wsporczej.

1 Produkt

Nr kat. 107490 VBS KB D50 RA680 V2A

GTIN / EAN 4013364478480, Nr taryfy celnej (EU): 85389099, Waga brutto: 10.38 kg, Jednostka opakowaniowa: 1.00 szt.


Rysunki

Informacje dodatkowe

Statyw na czterech nogach mały ze stali nierdzewnej (wykonanie składane)
Statyw na czterech nogach (wykonanie składane) do rur wsporczych
Ø50 mm z wyprowadzeniem bocznym lub iglic odgromowych
Ø40 mm z akcesoriami redukcyjnymi
Z podwójną płytką dociskową na 2x drut okrągły 8-10 mm
Do ustawiania na podstawie betonowej (waga 17 kg)
Z możliwością kompensacji nachylenia dachu do maks. 10°
Podstawy betonowe do układania jedna na drugiej (art. nr 102 010),
podkładki (art. nr 102 050),
zestawy wsporników do podstaw (art. nr 107 396),
akcesoria redukcyjne (art. nr 107 399),
należy zamawiać oddzielnie.
Statywy na czterech nogach są zwymiarowane zgodnie z
Eurokodem 1 (DIN EN 1991-1-4 + DIN EN 1991-1-4/NA)
.
Materiał statywu: stal nierdzewna
Uchwyt do rury: 50 i 40*) mm
Promień (statyw): 680 mm

Producent: DEHN
Typ: VBS KB D50 RA680 V2A
Nr kat.: 107490
lub podobny.

Certyfikaty

 

Dane techniczne

Materiał statywu stal nierdzewna
Uchwyt do rury 50 i 40*) mm
Promień (statyw) 680 mm
Wymagana powierzchnia dla statywu 960 x 960 mm
*) Tylko z zestawem adapterów art. nr 107 399.

Produkt 107490 został dodany do notatnika.

Do koszyka dodano produkt 107490.


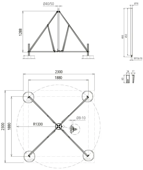
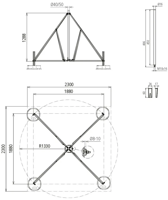
Duży statyw na czterech nogach

Na iglice odgromowe D40, rury wsporcze DEHNiso-Combi z iglicą odgromową lub przewodem HVI poprowadzonym wewnątrz rury wsporczej / na rurze wsporczej.

1 Produkt

Nr kat. 107491 VBS KB D50 RA1330 V2A

GTIN / EAN 4013364478497, Nr taryfy celnej (EU): 85389099, Waga brutto: 17.63 kg, Jednostka opakowaniowa: 1.00 szt.


Rysunki

Informacje dodatkowe

Statyw na czterech nogach duży ze stali nierdzewnej (wykonanie składane)
Statyw na czterech nogach (wykonanie składane) do rur wsporczych
Ø50 mm z wyprowadzeniem bocznym lub iglic odgromowych
Ø40 mm z akcesoriami redukcyjnymi
Z podwójną płytką dociskową na 2x drut okrągły 8-10 mm
Do ustawiania na podstawie betonowej (waga 17 kg)
Z możliwością kompensacji nachylenia dachu do maks. 10°
Podstawy betonowe do układania jedna na drugiej (art. nr 102 010),
podkładki (art. nr 102 050),
zestawy wsporników do podstaw (art. nr 107 396),
akcesoria redukcyjne (art. nr 107 399),
należy zamawiać oddzielnie.
Statywy na czterech nogach są zwymiarowane zgodnie z
Eurokodem 1 (DIN EN 1991-1-4 + DIN EN 1991-1-4/NA)
.
Materiał statywu: stal nierdzewna
Uchwyt do rury: 50 i 40*) mm
Promień (statyw): 1330 mm

Producent: DEHN
Typ: VBS KB D50 RA1330 V2A
Nr kat.: 107491
lub podobny.

Certyfikaty

 

Dane techniczne

Materiał statywu stal nierdzewna
Uchwyt do rury 50 i 40*) mm
Promień (statyw) 1330 mm
Wymagana powierzchnia dla statywu 1880 x 1880 mm
*) Tylko z zestawem adapterów art. nr 107 399.

Produkt 107491 został dodany do notatnika.

Do koszyka dodano produkt 107491.


Powrót na górę