Your dashboard services.
Register to access all tools.

Statywy do iglic odgromowych D40 i rur wsporczych z tworzywa sztucznego wzmocnionego włóknem szklanym / aluminium

Do ustawiania na podstawie betonowej (waga 17 kg). Z możliwością kompensacji nachylenia dachu do maks. 10° za pomocą regulowanego mocowania na uchwycie podstawy. Iglice odgromowe D40 / rury wsporcze należy zamawiać oddzielnie.

Podstawy betonowe do układania jedna na drugiej, podkładki, zestawy wsporników do podstaw do mocowania dodatkowych podstaw betonowych, zestaw adapterów do iglic odgromowych D40 są dostępne osobno jako akcesoria.

Uwaga: Informacje na temat kompatybilności materiałowej wsporników dachowych i podkładek w stosunku do elementów dachowych można uzyskać kontaktując się z DEHN.

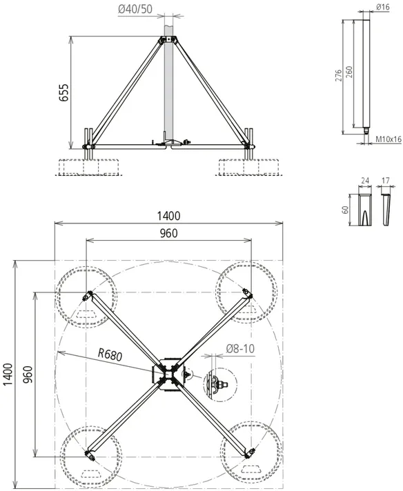
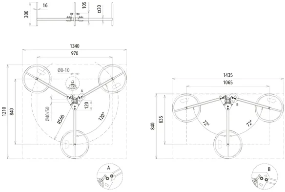
Mały statyw na trzech nogach

Na iglice odgromowe D40, rury wsporcze DEHNiso-Combi z iglicą odgromową lub przewodem HVI poprowadzonym wewnątrz rury / na zewnątrz rury wsporczej.
Połączenie za pomocą podwójnej płytki dociskowej na 2x drut okrągły 8-10 mm [obciążalność prądem piorunowym 100 kA (10/350 µs)].

1 Produkt

Nr kat. 107390 DBS KB D50 RA680 V2A

GTIN / EAN 4013364478466, Nr taryfy celnej (EU): 85389099, Waga brutto: 7.75 kg, Jednostka opakowaniowa: 1.00 szt.

Wcześniejszy produkt

Rysunki

Informacje dodatkowe

Statyw na trzech nogach mały ze stali nierdzewnej (wykonanie składane)
Statyw na trzech nogach (wykonanie składane) do rur wsporczych
Ø50 mm z wyprowadzeniem bocznym lub iglic odgromowych
Ø40 mm z akcesoriami redukcyjnymi
Z podwójną płytką dociskową na 2x drut okrągły 8-10 mm
Do ustawiania na podstawie betonowej (waga 17 kg)
Z możliwością kompensacji nachylenia dachu do maks. 10°
Podstawy betonowe do układania jedna na drugiej (nr art. 102 010),
Podkładki (nr art. 102 050),
Zestawy wsporników do podstaw (nr art. 107 396),
Akcesoria redukcyjne (nr art. 107 399),
należy zamawiać oddzielnie.
Statywy na trzech nogach są zwymiarowane zgodnie z
Eurokodem 1 (DIN EN 1991-1-4 + DIN EN 1991-1-4/NA)
.
Materiał statywu: stal nierdzewna
Uchwyt na iglicę: 50 i 40*) mm
Promień (statyw): 680 mm
Wymagana powierzchnia dla statywu: 1175 x 1020 mm

Producent: DEHN
Typ: DBS KB D50 RA680 V2A
Nr kat.: 107390
lub podobny.

Certyfikaty

 

Dane techniczne

Materiał statywu stal nierdzewna
Uchwyt na iglicę 50 i 40*) mm
Promień (statyw) 680 mm
Wymagana powierzchnia dla statywu 1175 x 1020 mm
*) Tylko z zestawem adapterów art. nr 107 399.

Produkt 107390 został dodany do notatnika.

Do koszyka dodano produkt 107390.


Duży statyw na trzech nogach

Na iglice odgromowe D40, rury wsporcze DEHNiso-Combi z iglicą odgromową lub przewodem HVI poprowadzonym wewnątrz rury / na zewnątrz rury wsporczej.
Połączenie za pomocą podwójnej płytki dociskowej na 2x drut okrągły 8-10 mm [obciążalność prądem piorunowym 100 kA (10/350 µs)].

1 Produkt

Nr kat. 107391 DBS KB D50 RA1330 V2A

GTIN / EAN 4013364478473, Nr taryfy celnej (EU): 85389099, Waga brutto: 15.60 kg, Jednostka opakowaniowa: 1.00 szt.

Wcześniejszy produkt

Rysunki

Informacje dodatkowe

Statyw na trzech nogach duży ze stali nierdzewnej (wykonanie składane)
Statyw na trzech nogach (wykonanie składane) do rur wsporczych
Ø50 mm z wyprowadzeniem bocznym i podwójną płytką dociskową na
2x drut okrągły 8-10 mm, do ustawiania na
podstawie betonowej (waga 17 kg) z możliwością kompensacji
nachylenia dachu do maks. 10° za pomocą zestawu wsporników do podstaw.
Podstawy betonowe do układania jedna na drugiej (nr art. 102 010),
Podkładki (nr art. 102 050),
Zestawy wsporników do podstaw (nr art. 107 396),
Akcesoria redukcyjne (nr art. 107 399),
należy zamawiać oddzielnie.
Statywy na trzech nogach są zwymiarowane zgodnie z
Eurokodem 1 (DIN EN 1991-1-4 + DIN EN 1991-1-4/NA)
.
Materiał statywu: stal nierdzewna
Uchwyt na iglicę: 50 i 40*) mm
Promień (statyw): 1330 mm
Wymagana powierzchnia dla statywu: 2300 x 1995 mm

Producent: DEHN
Typ: DBS KB D50 RA1330 V2A
Nr kat.: 107391
lub podobny.

 

Dane techniczne

Materiał statywu stal nierdzewna
Uchwyt na iglicę 50 i 40*) mm
Promień (statyw) 1330 mm
Wymagana powierzchnia dla statywu 2300 x 1995 mm
*) Tylko z zestawem adapterów art. nr 107 399.

Produkt 107391 został dodany do notatnika.

Do koszyka dodano produkt 107391.


Mały statyw na czterech nogach

Na iglice odgromowe D40, D50, D60, rury wsporcze DEHNiso-Combi z iglicą odgromową lub przewodem HVI poprowadzonym wewnątrz / na zewnątrz rury wsporczej.
Połączenie za pomocą podwójnej płytki dociskowej na 2x drut okrągły 8-10 mm [obciążalność prądem piorunowym 100 kA (10/350 µs)].

1 Produkt

Nr kat. 107490 VBS KB D50 RA680 V2A

GTIN / EAN 4013364478480, Nr taryfy celnej (EU): 85389099, Waga brutto: 10.38 kg, Jednostka opakowaniowa: 1.00 szt.


Rysunki

Informacje dodatkowe

Statyw na czterech nogach mały ze stali nierdzewnej (wykonanie składane)
Statyw na czterech nogach (wykonanie składane) do rur wsporczych
Ø50 mm z wyprowadzeniem bocznym lub iglic odgromowych
Ø40 mm z akcesoriami redukcyjnymi
Z podwójną płytką dociskową na 2x drut okrągły 8-10 mm
Do ustawiania na podstawie betonowej (waga 17 kg)
Z możliwością kompensacji nachylenia dachu do maks. 10°
Podstawy betonowe do układania jedna na drugiej (nr art. 102 010),
Podkładki (nr art. 102 050),
Zestawy wsporników do podstaw (nr art. 107 396),
Akcesoria redukcyjne (nr art. 107 399),
należy zamawiać oddzielnie.
Statywy na czterech nogach są zwymiarowane zgodnie z
Eurokodem 1 (DIN EN 1991-1-4 + DIN EN 1991-1-4/NA)
.
Materiał statywu: stal nierdzewna
Uchwyt na iglicę: 50 i 40*) mm
Promień (statyw): 680 mm
Wymagana powierzchnia dla statywu: 960 x 960 mm

Producent: DEHN
Typ: VBS KB D50 RA680 V2A
Nr kat.: 107490
lub podobny.

Certyfikaty

 

Dane techniczne

Materiał statywu stal nierdzewna
Uchwyt na iglicę 50 i 40*) mm
Promień (statyw) 680 mm
Wymagana powierzchnia dla statywu 960 x 960 mm
*) Tylko z zestawem adapterów art. nr 107 399.

Produkt 107490 został dodany do notatnika.

Do koszyka dodano produkt 107490.


Duży statyw na czterech nogach

Na iglice odgromowe D40, D50, D60, rury wsporcze DEHNiso-Combi z iglicą odgromową lub przewodem HVI poprowadzonym wewnątrz / na zewnątrz rury wsporczej.
Połączenie za pomocą podwójnej płytki dociskowej na 2x drut okrągły 8-10 mm [obciążalność prądem piorunowym 100 kA (10/350 µs)].

1 Produkt

Nr kat. 107491 VBS KB D50 RA1330 V2A

GTIN / EAN 4013364478497, Nr taryfy celnej (EU): 85389099, Waga brutto: 17.63 kg, Jednostka opakowaniowa: 1.00 szt.


Rysunki

Informacje dodatkowe

Statyw na czterech nogach duży ze stali nierdzewnej (wykonanie składane)
Statyw na czterech nogach (wykonanie składane) do rur wsporczych
Ø50 mm z wyprowadzeniem bocznym lub iglic odgromowych
Ø40 mm z akcesoriami redukcyjnymi
Z podwójną płytką dociskową na 2x drut okrągły 8-10 mm
Do ustawiania na podstawie betonowej (waga 17 kg)
Z możliwością kompensacji nachylenia dachu do maks. 10°
Podstawy betonowe do układania jedna na drugiej (nr art. 102 010),
Podkładki (nr art. 102 050),
Zestawy wsporników do podstaw (nr art. 107 396),
Akcesoria redukcyjne (nr art. 107 399),
należy zamawiać oddzielnie.
Statywy na czterech nogach są zwymiarowane zgodnie z
Eurokodem 1 (DIN EN 1991-1-4 + DIN EN 1991-1-4/NA)
.
Materiał statywu: stal nierdzewna
Uchwyt na iglicę: 50 i 40*) mm
Promień (statyw): 1330 mm
Wymagana powierzchnia dla statywu: 1880 x 1880 mm

Producent: DEHN
Typ: VBS KB D50 RA1330 V2A
Nr kat.: 107491
lub podobny.

 

Dane techniczne

Materiał statywu stal nierdzewna
Uchwyt na iglicę 50 i 40*) mm
Promień (statyw) 1330 mm
Wymagana powierzchnia dla statywu 1880 x 1880 mm
*) Tylko z zestawem adapterów art. nr 107 399.

Produkt 107491 został dodany do notatnika.

Do koszyka dodano produkt 107491.


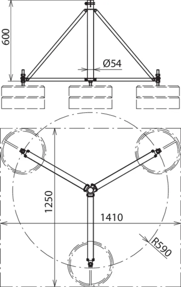
Wykonanie na zawiasach ze stali ocynkowanej ogniowo

Do iglic odgromowych Ø40 mm lub rur wsporczych Ø50 mm o długości 3200 mm (np. art. nr 105 440 lub 105 300), bez dodatkowego mocowania do elementów konstrukcyjnych.
Połączenie za pomocą podwójnej płytki dociskowej na 2x drut okrągły 8-10 mm [obciążalność prądem piorunowym 100 kA (10/350 µs)].

3 Produkty

Nr kat. 105200 DBS KB D40.50 RA560 STTZN

GTIN / EAN 4013364095908, Nr taryfy celnej (EU): 85389099, Waga brutto: 9.60 kg, Jednostka opakowaniowa: 1.00 szt.


Rysunki

Informacje dodatkowe

Statyw na trzech nogach do iglic odgromowych, wykonanie składane, ze stali ocynkowanej ogniowo
Statyw na trzech nogach do DEHNiso-Combi
do swobodnego ustawiania rur wsporczych DEHNiso-Combi
lub iglic odgromowych D40
o długości 3200 mm
(np. art. nr 105 300 lub 105 440),
bez dodatkowego mocowania do
elementów konstrukcyjnych
Z możliwością kompensacji nachylenia dachu do maks. 10°.
Podstawę betonową do układania jedna na drugiej (nr art. 102 010) i
podkładkę (nr art. 102 050) należy zamawiać
oddzielnie.
Materiał statywu: St/tZn
Uchwyt na iglicę: Ø40 / 50 mm
Promień (statyw): 560 mm
Wymagana powierzchnia dla statywu: 1200 x 1330 mm
Liczba podstaw betonowych: 6 / 9 sztuk po 17 kg
Spełnia wymagania normy: DIN EN 62561-1

Producent: DEHN
Typ: DBS KB D40.50 RA560 STTZN
Nr kat.: 105200
lub podobny.

Certyfikaty

 

Dane techniczne

Materiał statywu St/tZn
Uchwyt na iglicę Ø40 / 50 mm
Promień (statyw) 560 mm
Wymagana powierzchnia dla statywu 1200 x 1330 mm
Spełnia wymagania normy DIN EN 62561-1

Produkt 105200 został dodany do notatnika.

Do koszyka dodano produkt 105200.

Nr kat. 105351 DBS KB D40.50 RA620 STTZN

GTIN / EAN 4013364238916, Nr taryfy celnej (EU): 85389099, Waga brutto: 11.50 kg, Jednostka opakowaniowa: 1.00 szt.


Rysunki

Informacje dodatkowe

Statyw na trzech nogach do przewodu HVI, mały, stal HDG
Statyw na trzech nogach do przewodu HVI w rurze wsporczej
specjalne wykonanie do rur wsporczych (długość 3200 mm).
Aby zachować promień gięcia przewodu HVI na dole
statywu na trzech nogach, 2 betonowe podstawy
są umieszczone poniżej nogi, a jedna powyżej.
Bez dodatkowego mocowania do elementów konstrukcyjnych
Możliwość kompensacji nachylenia dachu do maks. 10°.
Podstawę betonową do układania jedna na drugiej (art. nr 102 010) i
podkładkę (art. nr 102 050) należy zamawiać oddzielnie.
Statywy na trzech nogach są zwymiarowane zgodnie z
Eurokodem 1 (DIN EN 1991-1-4 + DIN EN 1991-1-4/NA) .
Materiał statywu: St/tZn
Uchwyt na iglicę: 40 / 50 mm
Promień (statyw): 620 mm
Wymagana powierzchnia dla statywu: 1300 x 1450 mm
Liczba podstaw betonowych: 3-12 sztuk po 17 kg

Producent: DEHN
Typ: DBS KB D40.50 RA620 STTZN
Nr kat.: 105351
lub podobny.

Certyfikaty

 

Dane techniczne

Materiał statywu St/tZn
Uchwyt na iglicę 40 / 50 mm
Promień (statyw) 620 mm
Wymagana powierzchnia dla statywu 1300 x 1450 mm

Produkt 105351 został dodany do notatnika.

Do koszyka dodano produkt 105351.

Nr kat. 105357 DBS KB D40.50 RA220 STTZN

GTIN / EAN 4013364527829, Nr taryfy celnej (EU): 85389099, Waga brutto: 8.04 kg, Jednostka opakowaniowa: 1.00 szt.


Rysunki

Informacje dodatkowe

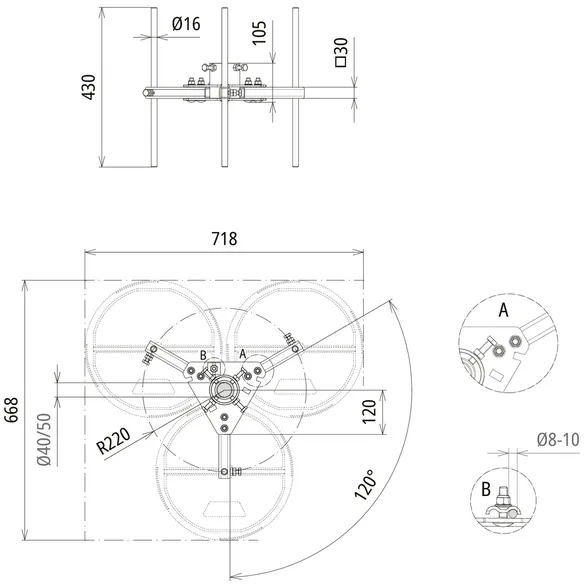
Statyw na trzech nogach ergonomiczny, o regulowanej wysokości i składany,
do wyposażenia w iglice odgromowe i rury wsporcze
Ø 40 mm i Ø 50 mm
Możliwość kompensacji skosów dachowych do 10°
Możliwość mocowania maksymalnie czterech
podstaw betonowych na nogę.
Materiał statywu: St/tZn
Uchwyt na iglicę: 40 / 50 mm
Promień (statyw): 220 mm
Wymagana powierzchnia dla statywu: 668 x 718 mm
Liczba podstaw betonowych: 3-12 sztuk po 17 kg
Spełnia wymagania normy: DIN EN 62561-1

Producent: DEHN
Typ: DBS KB D40.50 RA220 STTZN
Nr kat.: 105357
lub podobny.

 

Dane techniczne

Materiał statywu St/tZn
Uchwyt na iglicę 40 / 50 mm
Promień (statyw) 220 mm
Wymagana powierzchnia dla statywu 668 x 718 mm
Spełnia wymagania normy DIN EN 62561-1

Produkt 105357 został dodany do notatnika.

Do koszyka dodano produkt 105357.


Mały statyw na trzech nogach (produkt dostępny tylko do wyczerpania zapasów)

1 Produkt

Nr kat. 105290 DBS KB D40.50 RA590 V2A

GTIN / EAN 4013364126046, Nr taryfy celnej (EU): 85389099, Waga brutto: 8.40 kg, Jednostka opakowaniowa: 1.00 szt.


Rysunki

Informacje dodatkowe

Statyw na trzech nogach do iglic odgromowych, wykonanie składane, stal nierdzewna
Statywy na trzech nogach do iglic odgromowych D40 i rur wsporczych z tworzywa sztucznego wzmocnionego włóknem szklanym / aluminium
do ustawiania na podstawie betonowej (waga 17 kg)
Z możliwością kompensacji nachylenia dachu za pomocą gwintowanego pręta M16
do maks. 10°.
Zwymiarowana do obciążenia wiatrem
do 145 km/godz. (strefa obciążenia wiatrem II).
Iglice odgromowe D40 / rury wsporcze lub podstawy betonowe do układania jedna na drugiej
(art. nr 102 010) i podkładkę (art. nr 102
050) należy zamawiać oddzielnie.
Składany na iglice odgromowe
D40 do wysokości 5,5 m,
Materiał statywu: stal nierdzewna
Uchwyt na iglicę: Ø40 / 50 mm
Promień (statyw): 590 mm
Wymagana powierzchnia dla statywu: 1230 x 1370 mm
Wysokość – liczba podstaw betonowych: 4000 / 4500 mm – 3 szt. 5000 / 5500 mm – 6 szt.

Producent: DEHN
Typ: DBS KB D40.50 RA590 V2A
Nr kat.: 105290
lub podobny.

 

Dane techniczne

Materiał statywu stal nierdzewna
Uchwyt na iglicę Ø40 / 50 mm
Promień (statyw) 590 mm
Wymagana powierzchnia dla statywu 1230 x 1370 mm

Produkt 105290 został dodany do notatnika.

Do koszyka dodano produkt 105290.


Wykonanie rozłączne ze stali nierdzewnej (produkt dostępny tylko do wyczerpania zapasów)

na iglice odgromowe D40, rury wsporcze DEHNiso-Combi z iglicą odgromową lub przewodem HVI poprowadzonym wewnątrz rury wsporczej / na zewnątrz rury wsporczej.

1 Produkt

Nr kat. 105291 DBS KB D40.50 RA1100 V2A

GTIN / EAN 4013364126053, Nr taryfy celnej (EU): 85389099, Waga brutto: 19.00 kg, Jednostka opakowaniowa: 1.00 szt.


Rysunki

Informacje dodatkowe

Statyw na trzech nogach do iglic odgromowych, wykonanie rozłączne, stal nierdzewna
Statywy na trzech nogach do iglic odgromowych D40 i rur wsporczych z tworzywa sztucznego wzmocnionego włóknem szklanym / aluminium
do ustawiania na podstawie betonowej (waga 17 kg)
Z możliwością kompensacji nachylenia dachu za pomocą gwintowanego pręta M16
do maks. 10°.
Zwymiarowana do obciążenia wiatrem
do 145 km/godz. (strefa obciążenia wiatrem II).
Iglice odgromowe D40 / rury wsporcze lub podstawy betonowe do układania jedna na drugiej
(art. nr 102 010) i podkładkę (art. nr 102
050) należy zamawiać oddzielnie.
Rozłączany, na iglice odgromowe
D40 do wysokości 8,0 m,
Materiał statywu: stal nierdzewna
Uchwyt na iglicę: Ø40 / 50 mm
Promień (statyw): 1155 mm
Wymagana powierzchnia dla statywu: 2050 x 2300 mm
Wysokość – liczba podstaw betonowych: 6000 / 6500 mm – 6 szt. 7000-8000 mm – 9 szt.

Producent: DEHN
Typ: DBS KB D40.50 RA1100 V2A
Nr kat.: 105291
lub podobny.

Certyfikaty

 

Dane techniczne

Materiał statywu stal nierdzewna
Uchwyt na iglicę Ø40 / 50 mm
Promień (statyw) 1155 mm
Wymagana powierzchnia dla statywu 2050 x 2300 mm

Produkt 105291 został dodany do notatnika.

Do koszyka dodano produkt 105291.


Powrót na górę