Your dashboard services.
Register to access all tools.

Maszt odgromowy do poddachowego montażu przewodu HVI light

Do montażu nasadowego na wsporniku montażowym na krokiew.Przewód HVI light jest ułożony wewnątrz rury wsporczej, co daje atrakcyjny efekt wizualny. Przewód HVI light jest prowadzony przez rurę stojakową wspornika montażowego na krokiew i układany w obszarze kontrłat / łat dachowych.Zalety:
  • Montaż poddachowy – niewidoczny dla oka
  • Montaż nasadowy z tylko jedną widoczną rurą
  • Brak naprężeń mechanicznych np. spowodowanych obciążeniem śniegiem
Minimalna długość do zamówienia wynosi 6 m. Długość przewodu należy określić przy składaniu zamówienia (co 0,5 m).Artykuł jest produkowany na zamówienie (konfekcjonowanie długości przewodu), dlatego w tym przypadku nie przysługuje prawo zwrotu.

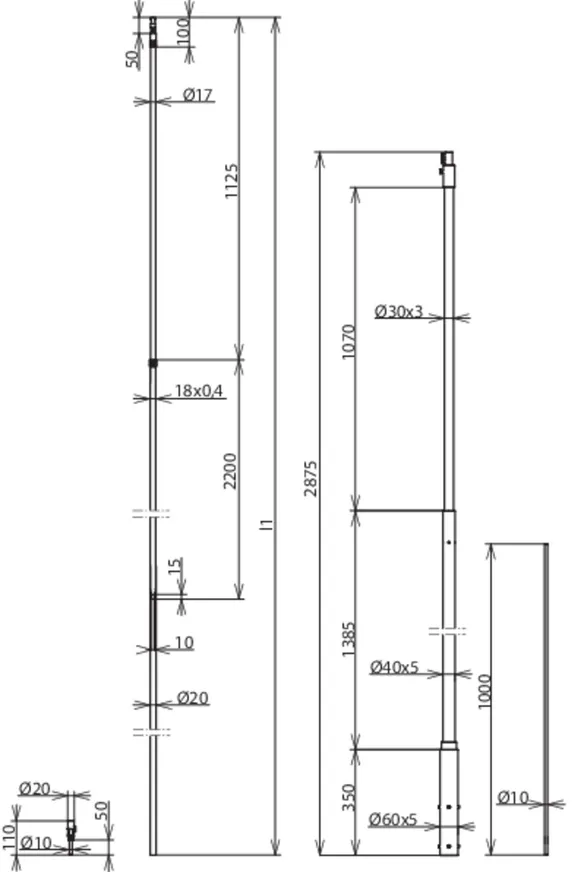
DEHNcon-H / przewód HVI light wewnątrz rury wsporczej z iglicą odgromową

Z końcówką przyłączeniową wewnątrz i iglicą odgromową Ø10 mm.

1 Produkt

Nr kat. 819243 HVI LI 20 L6M SR2875 FSP1000 DSH GFK AL

GTIN / EAN 4013364255951, Nr taryfy celnej (EU): 85389099, Waga brutto: 9.24 kg, Jednostka opakowaniowa: 1.00 szt.

Wcześniejszy produkt

Rysunki

Informacje dodatkowe

Maszt odgromowy do poddachowego montażu przewodu HVI light
Maszt odgromowy z przewodem HVI light i iglicą odgromową
do poddachowego montażu przewodu i montażu nasadowego na wsporniku montażowym na krokiew
Przewód HVI light jest prowadzony przez rurę stojakową wspornika montażowego na krokiew i
układany w obszarze kontrłat / łat dachowych.
Rury wsporcze są zwymiarowane zgodnie
z Eurokodem 1 (DIN EN 1991-1-4 + DIN EN 1991-1-4/NA).
DEHNcon-H, przewód HVI light wewnątrz rury wsporczej, ze specjalną
końcówką przyłączeniową wewnątrz i iglicą odgromową Ø10 mm, długość 1000 mm.
Materiał rury wsporczej: GRP / aluminium
Długość rury wsporczej: 2875 mm
Kolor przewodu: szary ●
Materiał przewodu: Cu
Równoważny odstęp separujący s (w powietrzu): ≤ 45 cm
Minimalna długość do zamówienia: 6 m
Maksymalne obciążenie wiatrem: 149 km/h
Odniesienie do norm: DIN IEC/TS 62561-8 (VDE V 0185-561-8)

Producent: DEHN
Typ: HVI LI 20 L6M SR2875 FSP1000 DSH GFK AL
Nr kat.: 819243
lub podobny.

Certyfikaty

 

Dane techniczne

Materiał rury wsporczej GRP / aluminium
Długość rury wsporczej 2875 mm
Długość iglicy odgromowej 1000 mm
Średnica zewnętrzna TWS Ø 30 mm
Średnica przewodu Ø 20 mm
Kolor przewodu szary
Materiał przewodu Cu
Równoważny odstęp separujący s (w powietrzu) ≤ 45 cm
Minimalna długość do zamówienia 6 m
Maksymalne obciążenie wiatrem 149 km/h
Odniesienie do norm DIN IEC/TS 62561-8 (VDE V 0185-561-8)

Produkt 819243 został dodany do notatnika.

Do koszyka dodano produkt 819243.


Powrót na górę