Your dashboard services.
Register to access all tools.

Wspornik montażowy na krokiew

Do bocznego mocowania
  • przewodów HVI light plus ułożonych w rurze wsporczej (Ø40 mm),
  • przewodów HVI ułożonych w rurze wsporczej (Ø50 mm),
  • jak również do montażu nasadowego rur wsporczych i poddachowego montażu przewodu HVI lub HVI light plus.
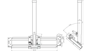
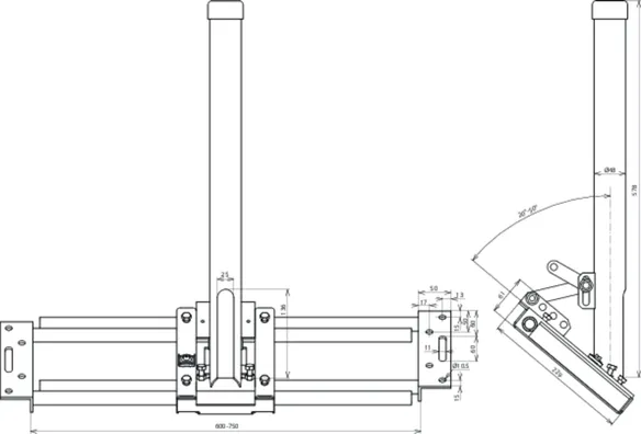
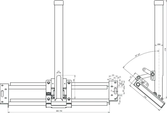
Wspornik montażowy na krokiew można zamontować na odpowiednich, stabilnych konstrukcjach nośnych.Wspornik montażowy na krokiew jest przystosowany do momentu dokręcania do 320 Nm.Są one montowane od zewnątrz i przykręcane do krokwi bezpośrednio lub przez kontrłaty.Wspornik montażowy na krokiew nie może być używany z izolacją dachową i może być używany tylko w ograniczonym zakresie ze zwykłymi dachówkami (karpiówka).Uwaga: Sytuację montażową należy omówić na miejscu z konstruktorem budynku.

1 Produkt

Nr kat. 105240 DASH D48 AS600.750 STTZN

GTIN / EAN 4013364135116, Nr taryfy celnej (EU): 73089098, Waga brutto: 7.23 kg, Jednostka opakowaniowa: 1.00 szt.


Rysunki

Informacje dodatkowe

Wspornik montażowy na krokiew, stal ocynkowana ogniowo
Wspornik montażowy na krokiew do mocowania
iglic odgromowych oraz rur wsporczych
Z tuleją kablową do systemów DEHNconductor
(wraz ze śrubami mocującymi)
Materiał: St/tZn
Zakres regulacji: 600-750 mm
Nachylenie dachu: 20-50°
Średnica rury wsporczej Ø: 48 mm
Średnica tulei kablowej w rurze wsporczej Ø: 25 mm

Producent: DEHN
Typ: DASH D48 AS600.750 STTZN
Nr kat.: 105240
lub podobny.

 

Dane techniczne

Materiał St/tZn
Zakres regulacji 600-750 mm
Nachylenie dachu 20-50°
Średnica rury wsporczej Ø 48 mm
Śruba mocująca l 8 x 120 mm

Produkt 105240 został dodany do notatnika.

Do koszyka dodano produkt 105240.


Powrót na górę